CAD Drawing Services

Welcome to CAD Collaboration, where we offer professional CAD drawing services to meet your project’s design and drafting needs.

Whether you require 2D or 3D CAD drawings, our experienced and dedicated team are here to help you, we specialise in providing accurate and detailed CAD drawings.

We have seen the poor quality of outputs from less expensive providers and want to fix this. We don’t think it should cost the earth for a quality CAD drawing.

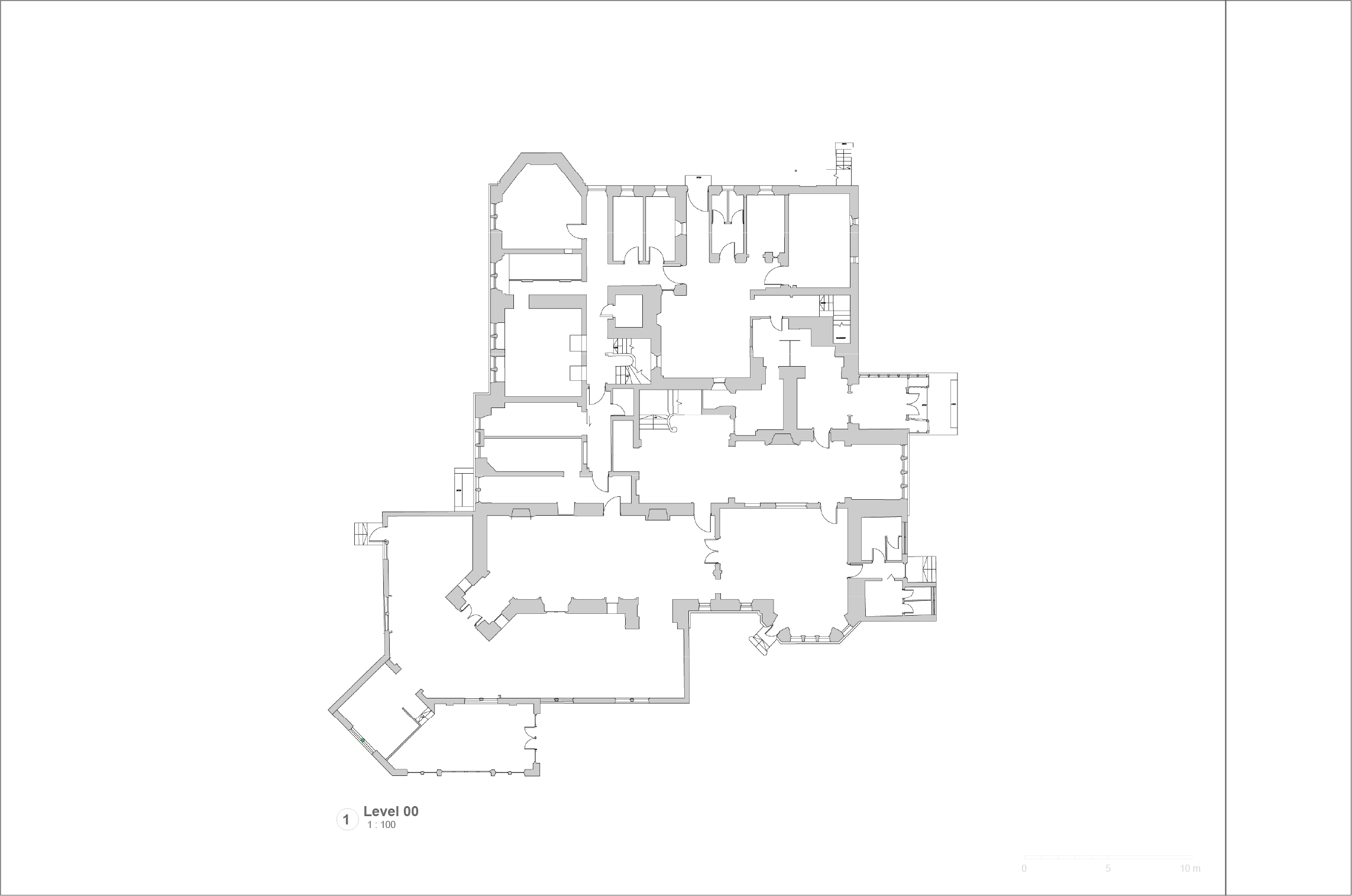
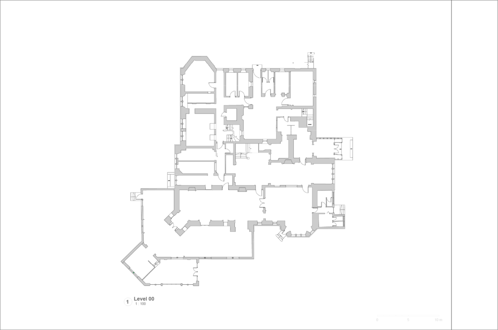
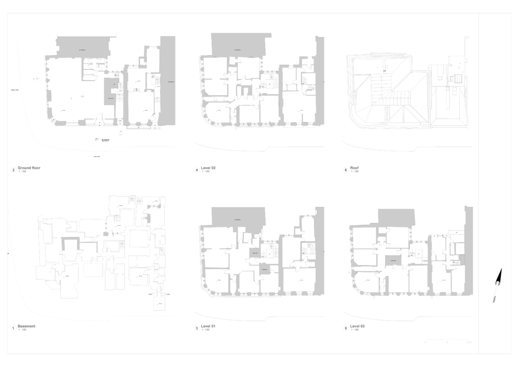
We know the importance of accuracy in CAD drawings in the architecture and engineering industry. We create precise and comprehensive CAD drawings tailored to your specifications. From conceptual sketches to detailed technical drawings, we cover various industries, project sizes and types.

Our expertise extends to 3D CAD modelling, allowing you to visualise your designs from multiple angles and perspectives. Our 3D CAD models provide a realistic representation of your project, enabling better visualisation and understanding.

2D drafting CAD services have emerged as a preferred method for transforming ideas and designs from paper to reality. With easy visualisation, enhanced detailing, reduced time requirements, and cost-effectiveness, these services offer the best assistance in obtaining accurate CAD drafting services.

Need assistance with drafting? We offer CAD drafting services that ensure precise and error-free drawings. Our team pays meticulous attention to detail, ensuring your drawings are accurate and comply with industry standards.

Harnessing the power of Building Information Modeling (BIM), we provide BIM modelling services that enhance collaboration, streamline workflows, and improve project efficiency. Our BIM models integrate architectural, structural, and MEP components for a holistic view of your project.

We specialise in converting point cloud data into accurate CAD models. Using advanced techniques and software, we transform 3D scanning data into CAD drawings that capture every detail of your physical space.

Why outsource CAD Drawing?

You can save time and resources by outsourcing your CAD drafting needs. Our professional team can handle small to large-scale projects, providing cost-effective solutions while maintaining exceptional quality and timely delivery.

Surveyors can benefit from our expertise, efficiency, and quality outputs by outsourcing CAD drawing requirements. This lets you focus on your core competencies while ensuring accurate and professional CAD drawings that meet modern market needs.
  • CAD Drawing can be time-consuming and diverts surveyors' attention aware from their core role, so outsourcing improves efficiency.
  • We have already invested in the necessary software, training and equipment to deliver CAD drawings, so you don’t have to.
  • Outsourcing allows you to be flexible and scalable in your client survey offerings - we can support workloads and timelines in small and large-scale projects.
  • As CAD specialists, we stay updated with the latest tools and technologies so you can access advanced, modern CAD drawing capabilities.
  • We pride ourselves on being dedicated collaborative partners - hence our name, CAD Collaboration - so you can enjoy the streamlined efficiencies of working with us as a partner.
  • We can provide specialist knowledge and expertise in CAD drawing and Revit modelling to provide high-quality and accurate drawings that meet industry standards

Our team of CAD professionals has extensive experience in various industries, ensuring that we understand your project's specific requirements and standards.

We adhere to strict quality control processes to ensure the accuracy and precision of our CAD drawings. Our commitment to excellence guarantees that you receive reliable and high-quality deliverables.

We understand the importance of meeting project deadlines. Our efficient workflow and experienced team allow us to deliver CAD drawings within agreed-upon timelines.

CAD Drawing can be expensive for surveyors to outsource, which means you may lose profit margin - we are a cost-effective and reliable option. We offer competitive pricing for our CAD drawing services without compromising quality. Contact us for a quote tailored to your project requirements.

Outsource your CAD drawing

Outsource your CAD drawing needs to CAD Collaboration and benefit from our expertise, experience and commitment to delivering exceptional results for you and your client.

Whether you require 2D or 3D CAD drawings, our team is ready to assist you in bringing your designs to life. Contact us today to discuss your project and learn more about how we can help you achieve your goals.

Who are CAD Collaboration?

With over 80 years of combined experience, we understand surveyors' challenges in delivering high-quality digital drawings. We dedicate our time to providing efficient, accurate, and innovative solutions at a reasonable price. We are a UK-based business serving clients globally.

Looking to outsource a Revit Model instead?

Surveyors outsource Revit modelling to us to benefit from the expertise of experienced Revit modellers, save time and resources, and ensure the delivery of accurate and detailed 3D representations of buildings or structures for their projects.

Whether you need to outsource CAD drafting services, obtain 3D CAD models, or convert point cloud data to Revit models, we have the expertise to meet your requirements.

Frequently Asked Questions

CAD stands for Computer-Aided Design - a process which is software agnostic (these can be built in AutoCAD and Revit or other software manufacturers such as Bentley Microstation.

A CAD drawing is a computer-generated digital representation of a design, typically used in engineering, architecture, or industrial design, to be viewed, edited, and stored electronically.

© 2026 AdaptiveBIM